Overview
- Traditional three-bedroom detached property
- Sizeable garden to the rear
- Popular location within the coastal town of Tobermory
- Close to local amenities
- Off-road parking
- EPC- E(41)
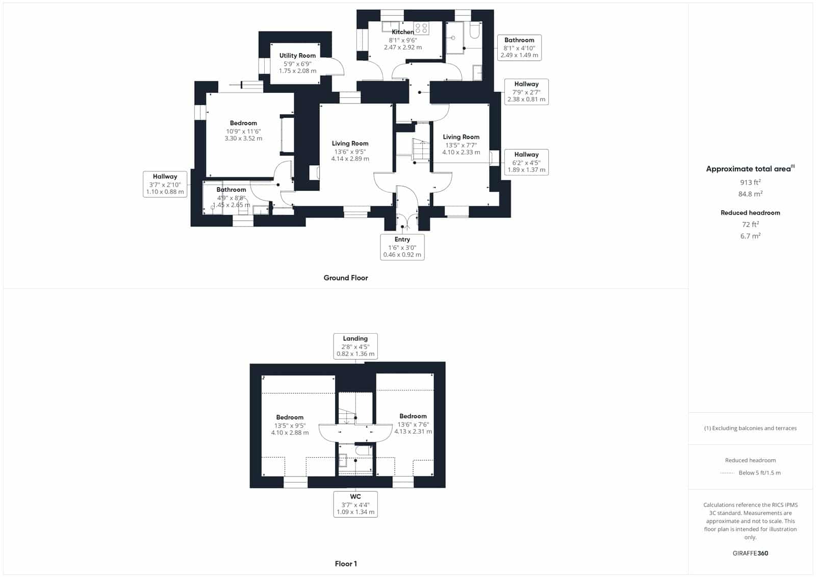
The property is entered from the front elevation, with the main entrance door leading into a central hallway. To the right, the family lounge is located to the front of the house, enjoying neighbourhood views out to the front. A multi-fuel stove sits within the fireplace, offering warmth and comfort in equal measure.
A glazed doorway leads through to the rear of the property, leading through a utility are to a fitted kitchen, benefitting from dual aspect windows which offer views out to the rear. A door leads from the kitchen, giving access to a utility room, housing the domestic appliances.
Located adjacent to the kitchen the main bathroom is also located on the ground floor, featuring a wet room design, suitable for those with mobility difficulties.
To the left of the hallway, a door leads through to a separate sitting room, previously used by bed and breakfast guests. An open grate fire is positioned within a stone fireplace, a focal point within the room.
The sitting room gives further access to a ground floor bedroom and adjacent bathroom, offering scope for those looking to offer rental accommodation in this popular island location. A patio door opens from the bedroom to the rear garden, flooding the room with natural daylight.
The staircase rises from the hallway, leading to an upper floor landing which, in turn, gives access to two first-floor bedrooms. A WC is also located on the upper floor.
Beul An Atna is in need of modernisation throughout, however, offers opportunity to create a wonderful family home in this much desired location.
The property faces the road to the front, with a car port offering off-street parking to the left of the property. A sizable, enclosed garden is located to the rear, offering scope for further development, subject to the necessary planning consents.
EPC Graph


















