Overview
- Coming soon
- Exclusive development
- A+ rated homes
- Air source heat pumps & underfloor heating
- Choices of kitchens & bathrooms
- Choices of tiling, flooring, paint colours, door style, fireplace/stove and even position of lighting and plug sockets.
- Additions such as shelving & media walls
- Full aftercare service for 12 months
At The Good House Company, you can choose every detail to allow you to create a home that is truly yours.
When you purchase a Good House Company home, you become part of their family and they will hand-hold you through the whole process of creating your dream bespoke home.
The Good House Company pride themselves on being client-centric, which results in beautiful homes that are an accurate reflection of their clients taste and style.
They design their homes to fit into the landscape, and use traditional natural materials such as slate, timber and stone. However, the houses are A-rated for energy efficiency, using modern insulation techniques and air-source heat-pumps with underfloor heating, to ensure that your heating costs are kept to a minimum.
You are able to choose every detail of your home. The Good House Company will guide you through the process of planning your dream kitchen and bathrooms. You will be able to choose tiles, flooring, paint colours, door styles, fireplace, stove and even the position of lighting and plug sockets. You are also able to make additions such as shelving and media walls.
The Good House Company offer a full aftercare service for 12 months, to ensure that you are completely happy with your new home.
At Fenton Grove there are 7 house types.
House Type A - 150 sqm - Plots 1 and 5
A three bedroom one and half storey home, with two shower rooms, lounge, kitchen-dining room utility room, entrance porch, and a covered entrance to the rear.
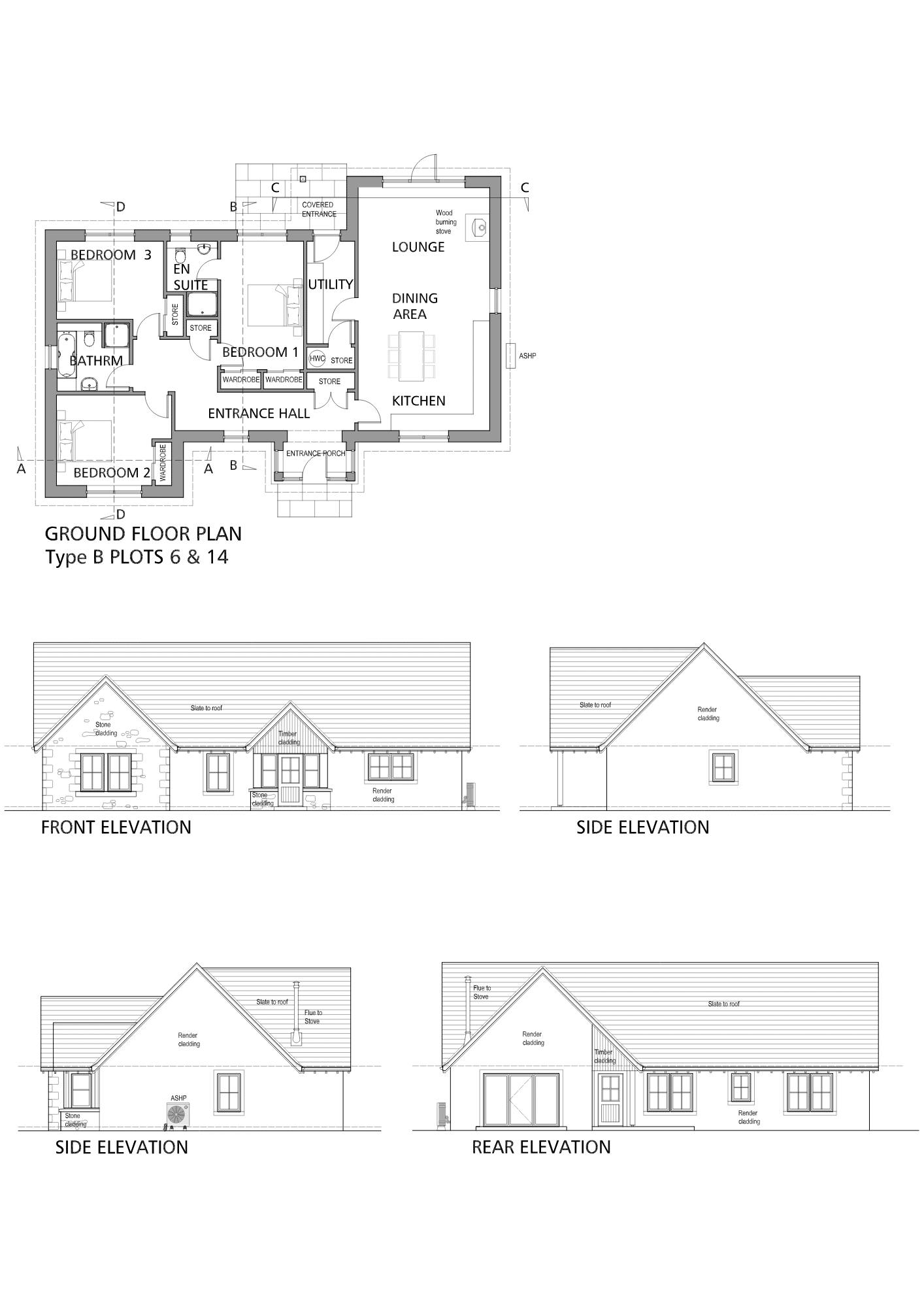
House Type B - Approx 122 sqm - Plots 6 & 14
A single storey three-bedroom home, with en-suite to the master bedroom, family bathroom, open plan living, dining, kitchen room, utility, entrance porch and covered entrance to the rear.
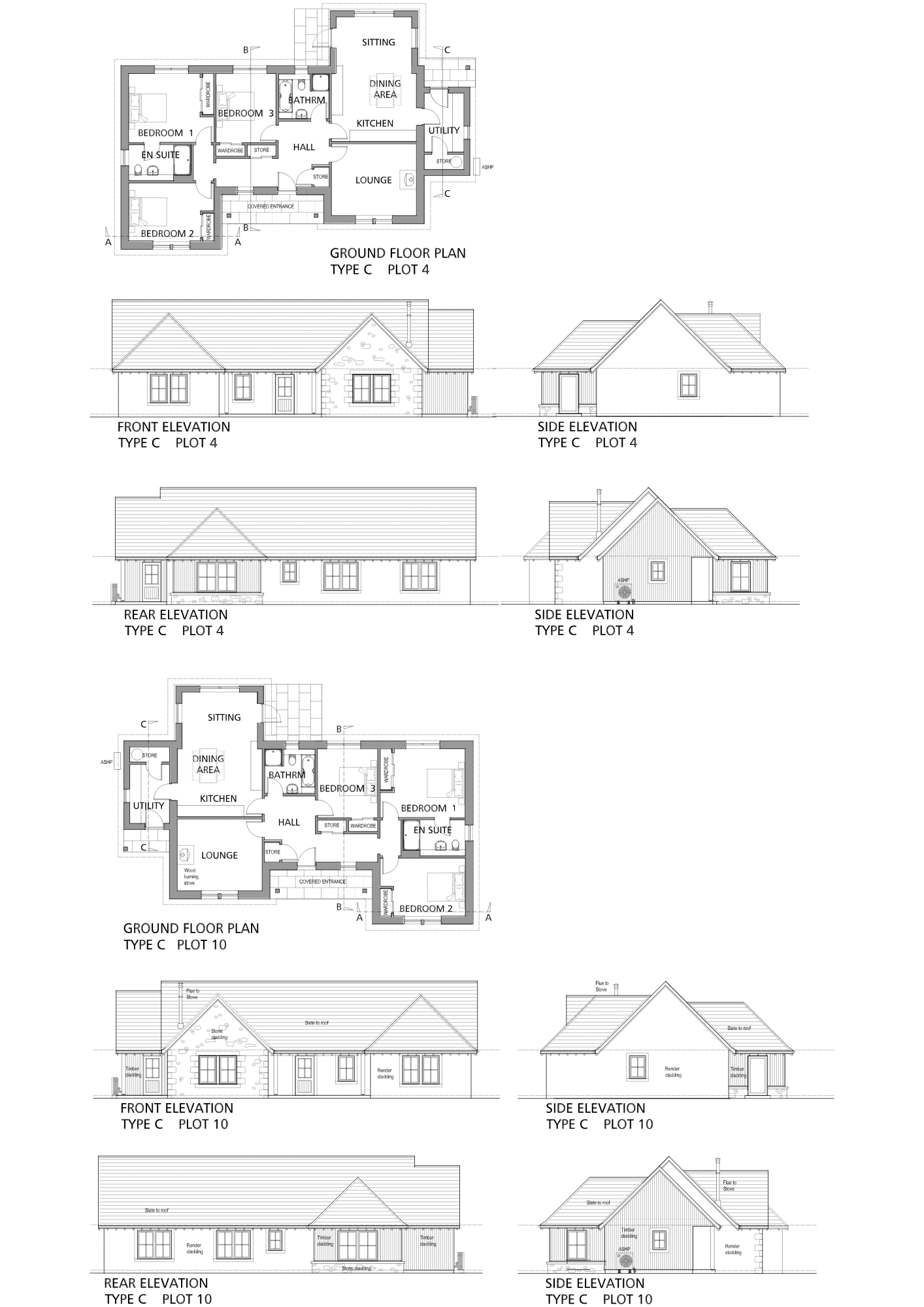
House Type C - Approx 127 sqm - Plots 4 & 10
A single storey three bedroom home, with en-suite to master bedroom, family bathroom, separate lounge, open plan kitchen, dining, family room and utility room.
House Type D - Approx 184 sqm - Plots 12 & 13
A four bedroom one and a half storey home. The home features en-suite bathrooms to both upper level bedrooms, two ground floor bedrooms, family bathroom, open plan kitchen, dining, living room, separate utility room and integrated garage.
House Type D+ - Approx 208 sqm - Plot 11
A four bedroom one and a half storey home. It features two upper bedrooms, both with en-suite bathrooms. There are two ground floor bedrooms, a family bathroom, open plan kitchen, dining, living room, separate utility, snug and integrated garage.
House Type D+2 - Approx 208 sqm - Plot 9
A four bedroom one and a half storey home. It features two upper bedrooms, both with en-suite bathrooms. There are two ground floor bedrooms, a family bathroom, open plan kitchen, dining, living room, utility room, snug and separate garage.
House Type E - Approx 154 sqm - Plots 2, 3, 7 & 8
A three/four bedroom semi detached home. Ecah home features a ground floor master bedroom with en-suite, three further first floor bedrooms with family bathroom, ground floor WC, utility room and open plan kitchen, dining, living room.
RESERVATION AND DEPOSIT
A deposit of £12,500 will secure the property whilst it is being built. On conclusion of missives, a further deposit of £7,500 shall be paid. The deposit is non-returnable in the event of the purchasers failing to complete the sale for reasons not attributable to the seller or their agents.
About the Good House Company
The Good House Company has built a well-earned reputation for crafting beautifully designed luxury homes in Kinross-shire and surrounding areas. At The Good House Company, we believe that a home is more than just a place to live; it is a sanctuary, a reflection of your aspirations, and a testament to the art of fine living.
Founded in 2006, The Good House Company has built over 100 luxury homes. We have a passion for excellence and a commitment to quality, and we pride ourselves on using traditional building materials alongside cutting edge energy-saving technologies to create homes that are not only beautiful but also energy efficient. Being deeply rooted in the Perth and Kinross area, The Good House Company has an intimate understanding of the local landscape, architecture, and community. This local expertise allows us to build small developments that harmonise with their surroundings while offering modern luxury and every convenience.
We believe in building relationships as strong as the homes we create. Our dedicated team will work closely with you throughout the entire process. As a client of The Good House Company, you’ll benefit from our bespoke approach, allowing you to customise every detail of your home. From room layouts through to finishing touches, we ensure that your new home is a unique reflection of your personal style. The results are a home that is truly yours.
















