Overview
- Popular Eight-bedroom semi-detached guesthouse
- Option for live-in owner accommodation on ground floor
- Well established property with good occupancy rates
- Mature gardens to the rear
- Convenient location in Oban
- Close to local amenities
- EPC Rating TBC
Arbour Guest House presents a unique and exciting opportunity to acquire a charming eight-bedroom guesthouse, ideally situated in the heart of Oban, one of Scotland’s most iconic and vibrant coastal towns. Renowned for its year-round tourism, high occupancy rates, and steady influx of visitors, Oban offers an exceptional setting for a thriving hospitality business.
This semi-detached property, dating back to the Victorian era, retains much of its original character while offering flexible and well-maintained accommodation across three floors. Entry is from the front garden, with a vestibule leading into a welcoming ground-floor hallway.
The guesthouse is fully operational and is ready to welcome guests year-round, with a layout that caters to both individual travellers and group bookings.
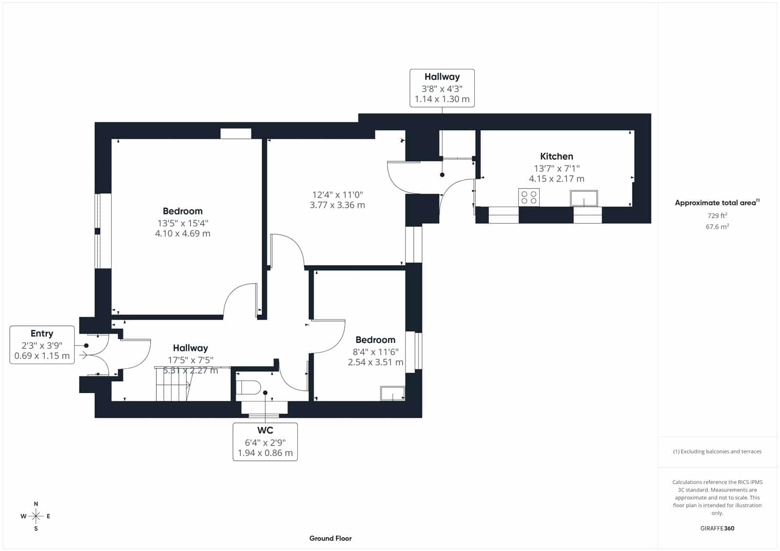
The ground floor accommodation comprises two bedrooms which share a WC, accessed from the hallway. One of the rooms features a double bed and the second is configured as a twin bedroom. All rooms are equipped with essential guest amenities. Both ground floor bedrooms share a shower room, located on the first floor.
A feature staircase rises to the first floor where three generously proportioned guest bedrooms are located. The largest bedroom is configured as four single beds and offers views of both the street and beyond, with glimpses of Oban harbour. Two of the first floor rooms benefit from en-suite shower rooms, with the third room sharing the shower room, accessed from the landing.
The staircase twists and rises to the second floor where three further rooms are located. Two of the rooms also share the first floor bathroom facilities: a double room with sea and street views, and an attic single room, while an additional double room features a private en-suite shower room.
To the rear of the ground floor, a private area has been adapted to support business operations, including an office, storage space, laundry area, and a fitted kitchen. These facilities are practical, designed to meet the demands of a busy guesthouse.
Outside, an enclosed garden offers a peaceful retreat for guests, complete with an outbuilding used for additional storage and laundry facilities.
Arbour Guest House offers tremendous potential for those looking to acquire a successful and longstanding letting property. Its central location ensures easy access to Oban’s wide range of amenities, transport links, and tourist attractions, making it an ideal base for visitors exploring the West Coast and the Isles.
With options for both family and letting use, this property represents a rare opportunity to acquire a well-established business premises in a prime location on the west coast of Scotland.
EPC Graph



























